
现代美式

每天给你分享一个案例设计
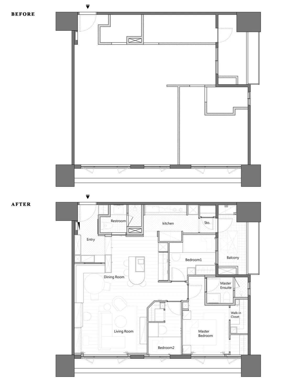
这套住宅面积:89㎡(套内)
格局:3 室 2厅 2卫
人数:2大 2 小

1. 玄关设计:
玄关不只是屋内外的缓冲
亦是盛满风格的一处引子
为了在进入主场之前,以饱满样态迎宾
特意打造了空间充裕的玄关区
成为标准玄关,并以全然独立一隅为配置

藉由砌造一道隔间墙,并凿开一扇通透的方格子窗,有了与用餐区之间的清晰界域之余,也完好铺展落尘区,错落不同高度层次的柜面、穿鞋椅,在进入公领域之前,顺势迎来了轻泄了一地的日光。


2. 客厅设计:
本案位居高楼层,日光充足漫洒的清亮感化显而出
刻意弱化主墙的压迫感
重新予以涂刷浅白漆料
注入自然有机质感,并搭衬活动式家具机柜
不仅以轻盈之美勾勒主景
边角亦收束为斜边,缓放了入门的视线

为烘托轻巧的主景,沙发后方筑起一道从餐厅延伸至客厅的高柜,以不断点的方式,揉和了男主人居家办公所需的书桌、书柜,以及孩子练琴的浅平台,将家庭活动需求一并整合之余,并在沙发后方,保留一径廊道可轻松步入、穿梭

特意选入了一座「橘红」色系沙发
以跳色方式,隐喻着客厅为全室的主场

3. 餐厅设计:
餐厅位于玄关与客厅之间
却不感到任何狭窄、压迫,放置了一式圆桌
反而完好运用了角落,循着墙角边沿
形成出一式L 形卧榻,下方还能作为储物区


4. 轻食区、厨房设计:
喜爱一同烹饪、享受亲子备餐
笑声常是满屋
尽管厨房格局是相当受限的一字形炉台
仍筑起一座中岛,盼以外拓手法
扩增餐厨互动感
一侧的茶水柜也细腻以木纹、手工感的窑变深色砖
往厨房延伸,形成出两域完美串连
更以极限笔法,放大使用面积

当孩子们在中岛备料时,光迹也沿着欢笑的路径,衬作每日的即景,考量中岛台边正临通往私领域的走道,便以圆弧收束,在中岛下方没有打造太多储物柜,反而是退缩了空间,悉心保留了全家人方便栖坐的区域。




5. 主卧设计:
屋主希望再主卧配置一间更衣室
但碍于空间有限,便巧用木作手法
精心丈量每一尺寸,创造了更衣室、书桌
双廊道的卧室,仅以圆弧门洞作为穿引两域
并将男女主人衣物左右划分
打造了充裕有秩序的储衣区
搭配一道木百叶窗帘,天光可漫漫而入



6. 主卫浴设计:
主浴保留原有布局,仅更换了磁砖、柜体
以相异质地的漆料、砖材,勾勒干湿分离两区
再悬上一盏造以水泥质的吊灯
仿若艺术品一般,光泽透显著雅润
并以铜金色的五金搭衬,让浴室更有质感

7. 女孩房设计:
以暖粉色铺展,同样要划分出更衣室,采取木作工法,精细度量每一寸度,使卧眠区保有储衣、阅读等多功能。

8. 男孩房设计:
男孩房一侧碍于与厨房相邻,房型产生了内凹,为解决畸零状况,在安置好卧眠区后,予以木作施作,砌造一隅书桌,扭转了难以使用的零碎区。

9. 客浴设计:
客浴采以干湿分离,因落置在公区,为延伸色调,便予以浅色柜体,搭衬雾黑系五金,湿区则选用长条型磁砖,以纵横两种向度拼法,浮生了独一无二的质感。

看到这里还意犹未尽?别担心
九鼎配资提示:文章来自网络,不代表本站观点。